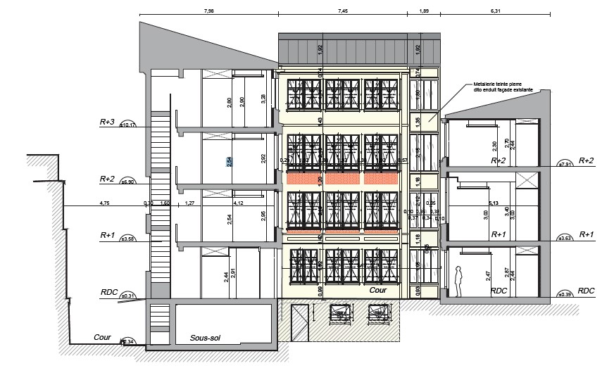
PRATEC participe à une mission de Maîtrise d’Oeuvre Structure M.O.E. rue Louis Blanc dans le 10e arrondissement de Paris.
Le projet : une revalorisation d’un immeuble de 1865
- Remplacement de toutes les menuiseries extérieures (simple vitrage en double vitrage)
- Mise en place d’une isolation intérieure des murs (laine de verre, augmentation de la performance énergétique)
- Modification de la verrière R+3 (isolation de la toiture avec fibre de bois, protection solaire)
- Végétalisation de la cour intérieure
- Mise en accessibilité avec la création de deux ascenseurs
La mission de PRATEC
Lors d’une phase de programmation de travaux, de mission de maîtrise d’œuvre, ou lors de la conception et la réalisation d’un projet, PRATEC propose au Maître d’Ouvrage des prestations complètes de Maîtrise d’Œuvre Structure (M.O.E.).
Cette prestation consiste, en collaboration avec le Maître d’Œuvre / Architecte et les autres lots techniques, à proposer un accompagnement à la carte sur le volet structure, depuis la conception des ouvrages jusqu’à la réalisation de son projet et la réception des travaux.
Une mission de Maîtrise d’Oeuvre Structure ? Prenez contact avec un de nos ingénieurs structure !



